Mit der ins Flachdach integrierten Überdachung eröffnen sich ganz neue Möglichkeiten: Die Terrasse kann in der wärmeren Jahreszeit sogar bei Regen gut genutzt werden. Essen und Relaxen im geschützten Freiraum gehören ab jetzt zu Ihrem Alltag. Die großen Terrassenschiebetüren in Wohnraum und Schlafzimmer verbinden ganz einfach das Drinnen mit dem Draußen.
Der Zusatz „Wood“ im NEXT by Danwood-Hausprogramm kennzeichnet Modulhäuser, deren Rahmenkonstruktion vollständig aus Holz statt aus Stahl besteht.
*Abbildungen zeigen teilweise individuelle Zusatzausstattung.
Hausstandard NEXT
Vollständige Baubeschreibung und Materialspezifikation.

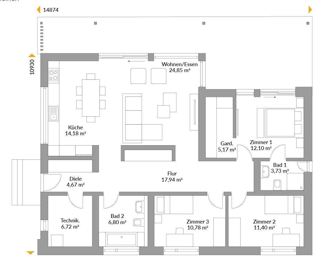
Grundrisse
Kompletter Plan aller Etagen mit Fläche
Das innovative Danwood-Modulbauprogramm bietet smarte schlüsselfertige Modulhäuser in moderner Architektur mit viel Glas, die komplett bis ins Detail im Werk vorgefertigt werden. Sie punkten mit kürzerer Lieferzeit und einer Aufbauzeit von drei Wochen. Ihr Alles-Inklusive-Konzept umfasst modernste Haustechnik, höchste Energieeffizienz und ausgesuchtes Innendesign.

Sogar fremde Leute haben uns im Ort angesprochen, wie schön unser Haus ist. Klar macht einen das stolz.