Moderner Winkelbungalow im klaren Bauhausstil mit Flachdach und raumhohem Fenstereck im Wohnbereich. Drei Schlafzimmer, eine große Küche und zwei Bäder sorgen für schönsten Wohnkomfort. Effiziente Haustechnik inklusive PV-Anlage und Smart-Home-System lassen keine Wünsche offen und erfüllen alle Anforderungen an zeitgemäßes Wohnen. Das perfekte Haus für anspruchsvolle Paare oder kleine Familien!
Der Zusatz „Wood“ im NEXT by Danwood-Hausprogramm kennzeichnet Modulhäuser, deren Rahmenkonstruktion vollständig aus Holz statt aus Stahl besteht.
*Abbildungen zeigen teilweise individuelle Zusatzausstattung.
Hausstandard NEXT
Vollständige Baubeschreibung und Materialspezifikation.

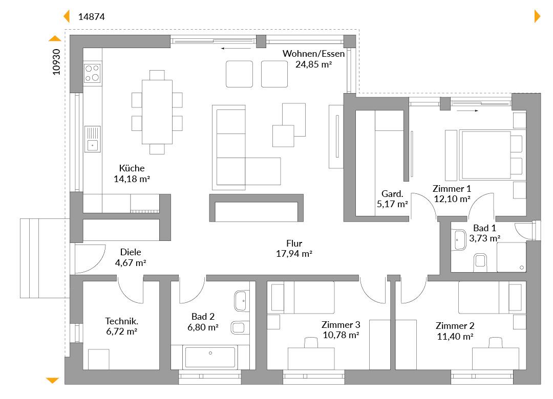
Grundrisse
Kompletter Plan aller Etagen mit Fläche
Das innovative Danwood-Modulbauprogramm bietet smarte schlüsselfertige Modulhäuser in moderner Architektur mit viel Glas, die komplett bis ins Detail im Werk vorgefertigt werden. Sie punkten mit kürzerer Lieferzeit und einer Aufbauzeit von drei Wochen. Ihr Alles-Inklusive-Konzept umfasst modernste Haustechnik, höchste Energieeffizienz und ausgesuchtes Innendesign.

Sogar fremde Leute haben uns im Ort angesprochen, wie schön unser Haus ist. Klar macht einen das stolz.