Wintergartenfeeling im offenen Wohn-, Ess- und Kochbereich mit Terrassenzugang, riesige Panoramafenster und freier Blick über die Galerie bis unters Dach erleben Sie in diesem modern designten Haus. Das Masterschlafzimmer - ebenfalls mit Terrassenzugang und En-Suite-Bad - befindet sich im eingeschobenen Flachdach-Quader, der durch die extrahohe Haustür und alternative Fassadengestaltung betont wird. Die Räume im Obergeschoss sind offen bis zum Dachfirst und versprechen ein großzügiges Wohngefühl.
*Abbildungen zeigen teilweise individuelle Zusatzausstattung.
Hausstandard NEXT
Vollständige Baubeschreibung und Materialspezifikation.

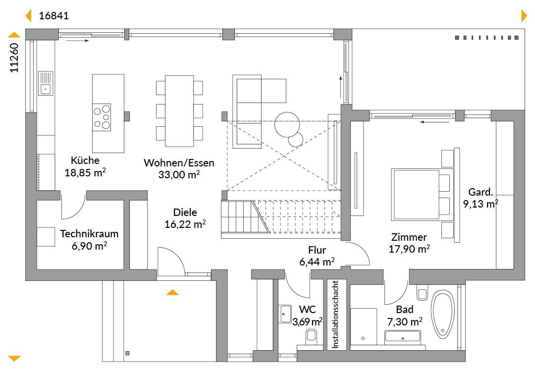
Grundrisse
Kompletter Plan aller Etagen mit Fläche





Das innovative Danwood-Modulbauprogramm bietet smarte schlüsselfertige Modulhäuser in moderner Architektur mit viel Glas, die komplett bis ins Detail im Werk vorgefertigt werden. Sie punkten mit kürzerer Lieferzeit und einer Aufbauzeit von drei Wochen. Ihr Alles-Inklusive-Konzept umfasst modernste Haustechnik, höchste Energieeffizienz und ausgesuchtes Innendesign.

Sogar fremde Leute haben uns im Ort angesprochen, wie schön unser Haus ist. Klar macht einen das stolz.