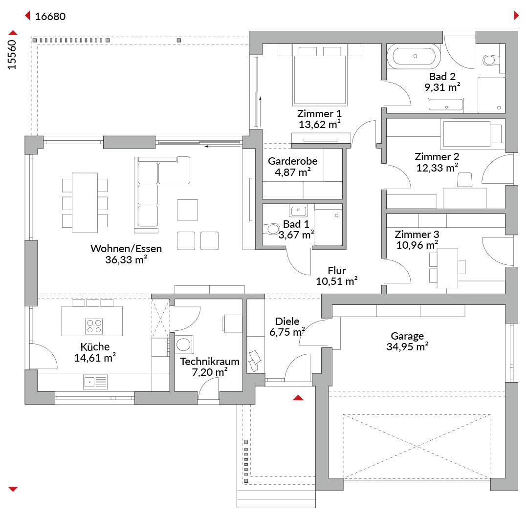
Winkelbungalow mit überdachtem Eingangsbereich der höheren Haustür und integrierter Garage. Garage von innen und außen begehbar. Überdachte Terrasse, erreichbar über Terrassenschiebetür im Wohnzimmer. Das höhere Erdgeschoss mit seinen höheren Fenstern ist als offenes Wohnen/ Essen mit anschließender Küche konzipiert. Technikraum, von Küche und außen begehbar. Diele, Flur, Gäste-WC, drei Schlafzimmer, davon eines mit Bad-en Suite und begehbarer Ankleide. Walmdach mit breiten Dachüberständen von 80 cm, Dachneigung 22°.
*Abbildungen zeigen teilweise individuelle Zusatzausstattung.
Hausstandard S-Linie
Vollständige Baubeschreibung und Materialspezifikation.

Grundrisse
Kompletter Plan aller Etagen mit Fläche
Willkommen bei der S-Linie von Danwood, der neuen Dimension des Wohlfühlens. Diese exklusive Serie hebt sich nicht nur durch ihr einmaliges architektonisches Design ab, sondern auch durch eine besondere funktionale Gestaltung, die jedem Wohnraum eine außergewöhnliche Qualität verleiht. Jedes Haus unserer S-Linie zeichnet sich durch eine Reihe von besonderen Merkmalen aus, die für ein luxuriöses Wohnerlebnis sorgen.

Sogar fremde Leute haben uns im Ort angesprochen, wie schön unser Haus ist. Klar macht einen das stolz.