Den besten Platz an der Sonne müssen Sie nicht länger suchen! Umschlossen von zwei Baukörpern und dem Verbindungstrakt liegt quasi inmitten dieses Hauses ein schöner überdachter Freiplatz. Diese Wohlfühl-Oase macht den puristisch-eleganten Flachdachbungalow mit seiner schönen Fassadengestaltung vollkommen.
*Abbildungen zeigen teilweise individuelle Zusatzausstattung.
Hausstandard NEXT
Vollständige Baubeschreibung und Materialspezifikation.

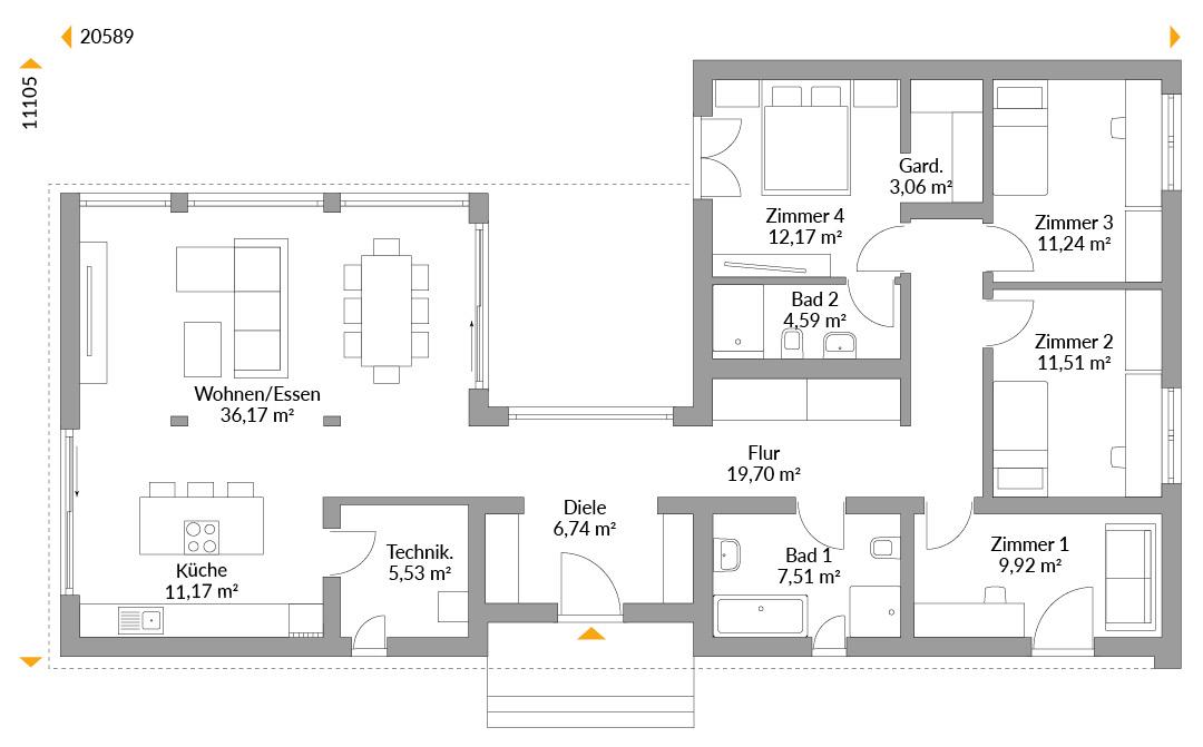
Grundrisse
Kompletter Plan aller Etagen mit Fläche
Das innovative Danwood-Modulbauprogramm bietet smarte schlüsselfertige Modulhäuser in moderner Architektur mit viel Glas, die komplett bis ins Detail im Werk vorgefertigt werden. Sie punkten mit kürzerer Lieferzeit und einer Aufbauzeit von drei Wochen. Ihr Alles-Inklusive-Konzept umfasst modernste Haustechnik, höchste Energieeffizienz und ausgesuchtes Innendesign.

Sogar fremde Leute haben uns im Ort angesprochen, wie schön unser Haus ist. Klar macht einen das stolz.